400-8090-660
首 页
优选好房
传统办公
共享办公
委托&投放
Bliss Office
>
优选好房
>
中骏天悦
中骏天悦 小户型标交316平 户型方正 采光好 朝南
分享
4.90
万元/月
单价:5.1元/㎡/天
物业费:35.0元/㎡/月
316㎡
建筑面积
50
容纳工位
标准交房
装修
普 陀-真如
11号线-真如、14号线-真如
中骏天悦
房源专属顾问为您服务
徐佳乐
Jerry
13052210023
预约看房
基本信息
使用率约
73%
可否注册
可以
免租时间
2个月
最早可租
随时可组
最短租期
36个月
装修备注
现状交付
看房时间
提前预约
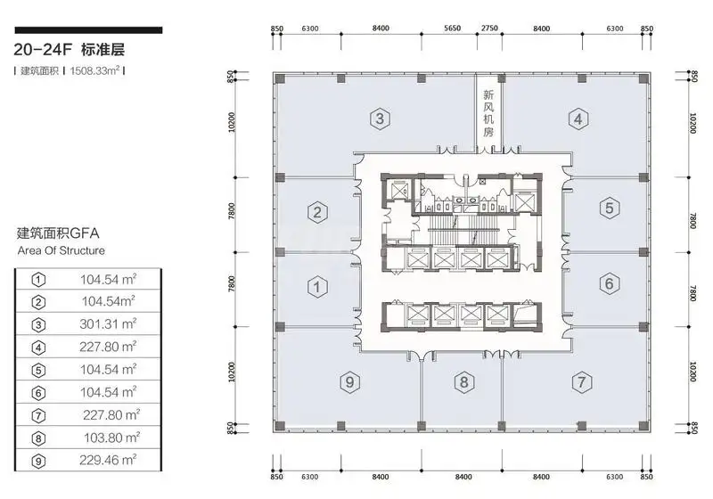
户型格局、图片
所属楼盘
查看楼盘详情 >
中骏天悦
总楼层
23层
单层面积
2000平方米
竣工年月
2019年
物业公司
世邦泰和物业
空调类型
中央空调
热门房源
联通国际大厦130平精装修带家具,2个隔断,拎包入驻
130㎡ / 10-14人
1.58
万元/月
旭辉企业大厦 稀缺小户型 293平 标准交付 采光好 价格好谈
293㎡ / 30
7.13
万元/月
淮海路商圈 嘉华中心303平房源出租 落地窗 双面采光
303㎡ / 30
7.37
万元/月
宝华大厦200平出租,精装带隔断,7/13号线长寿路站上盖
200㎡ / 15-22人
3.04
万元/月
泰康保险大厦756方,高区景色优美,户型方正
756㎡ / 70-80
22.08
万元/月
嘉里中心563方,会所级豪华装修,仅此一套
563㎡ / 50-70人
25.69
万元/月
创享塔创园70平米Loft户型,市区创意园稀有户型
70㎡ / 5-10人
0.64
万元/月
中信泰富广场20-25人办公室,带双经理室,精装全配
150㎡ / 20-25人
5.93
万元/月
宝华国际广场,高区双面采光,122平,房型方正
122㎡ / 10-15人
1.48
万元/月
公共交通
Public transit
中骏天悦
普 陀真如固川路166弄
周边楼盘推荐
月星环球港
品尊国际中心
中港汇大厦
我格广场